Zajišťujeme zpracování kompletní projektové dokumentace ve všech potřebných stupních. Spolupracujeme s vámi od prvního návrhu až po fázi realizace. Dodáváme kvalitní a přesně zpracované výstupy, které odpovídají vašim potřebám i všem technickým a legislativním požadavkům. Díky našemu odbornému přístupu a zkušenostem se vaše vize bez překážek promění ve skutečný projekt.
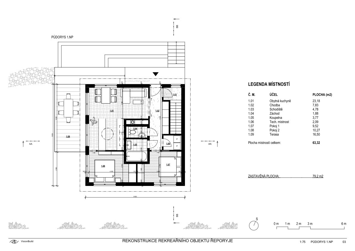
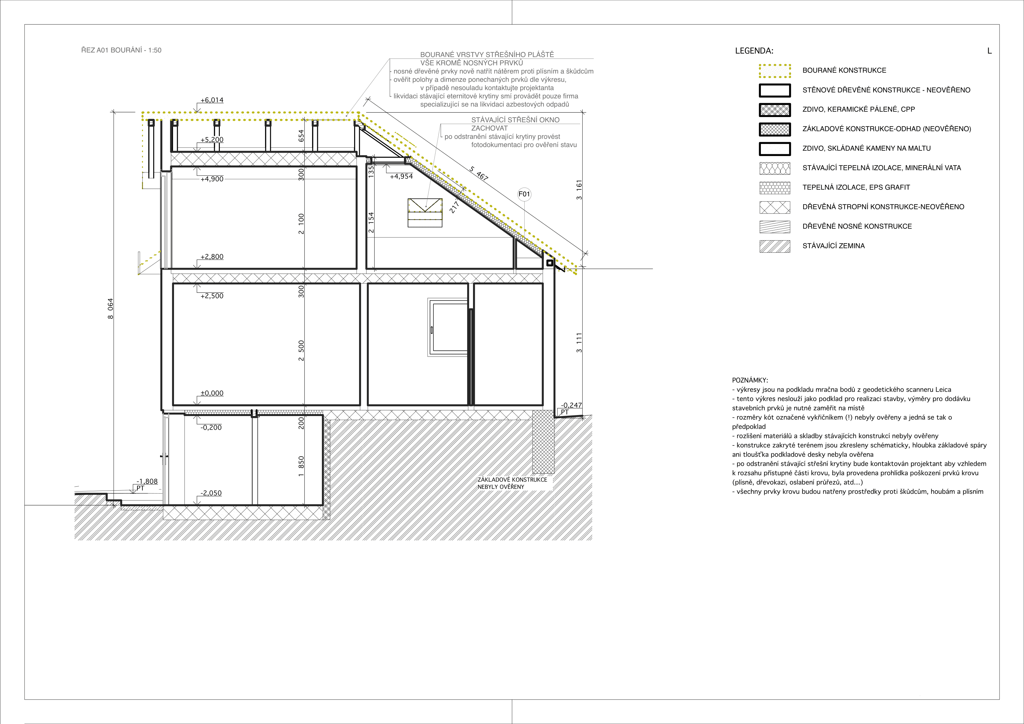
Zajišťujeme odborné zaměření a zpracování dokumentace skutečného provedení staveb. Výstup může mít podobu podrobné dokumentace stávajícího stavu nebo zjednodušeného pasportu, v závislosti na účelu a potřebách projektu.
Pasport je zjednodušená dokumentace určená zejména pro účely jednání s úřady, například při legalizaci stavby nebo doplnění evidence do katastru nemovitostí. V takovém případě lze rozsah optimalizovat pouze na požadavky úřadu a tím zkrátit čas i snížit náklady.
Zajistíme pro vás kompletní dokumentaci pro územní a stavební řízení. Připravíme všechny potřebné podklady, zajistíme vyjádření dotčených orgánů a zastoupíme vás při jednání s úřady. Celý proces koordinujeme tak, aby proběhl bez zbytečných zdržení a v souladu s aktuální legislativou. S námi nemusíte řešit byrokracii ani trávit čas obíháním úřadů. Postaráme se o vše potřebné a vy se můžete věnovat svému volnému času.
Kromě standardních stupňů projektové dokumentace zpracováváme také podklady pro specifické situace. Připravíme dokumentaci pro odstranění stavby, technické zprávy, koordinační výkresy a další výstupy podle požadavků úřadů nebo dalších účastníků projektu.
Dodáme přesné a srozumitelné podklady, které odpovídají skutečnému stavu i aktuálním předpisům. Díky našemu přístupu získáte to, co opravdu potřebujete, bez zbytečné administrativní zátěže.









