Objekt : Prodejna elektronických cigaret
Lokalita : Westfield Chodov
Technologie : Archicad, Twinmotion
Výstupy : Design Project v CZ a EN
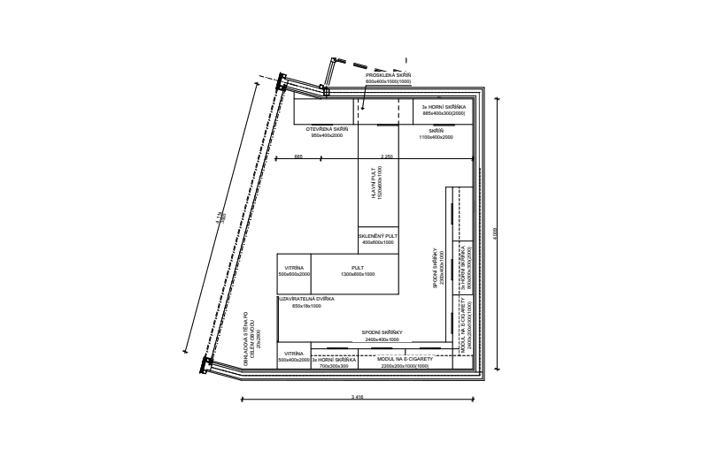
Cílem bylo vytvořit realistickou vizualizaci nové prodejny značky Vapestyle v jednom z nejrušnějších obchodních center v Česku – OC Westfield Chodov. Klient požadoval věrné ztvárnění designu interiéru včetně konkrétního nábytku a materiálového řešení, které připravovala firma 3W. Výsledná vizualizace měla sloužit nejen jako prezentační nástroj, ale i jako vodítko pro výrobu a montáž.
Při tvorbě vizualizace jsme vycházeli z detailní projektové dokumentace a návrhu interiéru, včetně specifikace nábytku na míru a použitých materiálů – od dubového obkladu až po černý dibond pro logo. Důraz byl kladen na přesné proporce, správné nasvícení a realistické barevné podání. Výsledná vizualizace sloužila jako klíčový podklad pro schvalovací proces ze strany OC Westfield – pomohla jasně komunikovat záměr a podpořila hladký průběh schválení pronajímatelem.





